 
    	
    	    
    
        
    
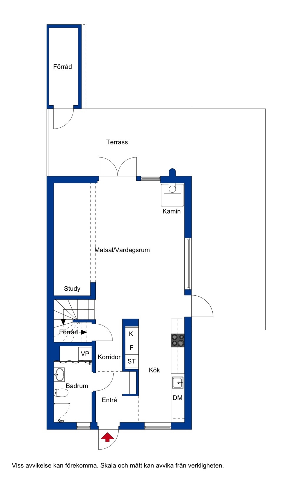
ENTRÉPLAN: HALL:
När du kliver in i huset möts du av en sober färgsättning med inspiration hämtad från skog och natur. Hall med klinker i beige ton och plats för att hänga upp ytterkläder. 
KÖK:
Köket är från Marbodal och av hög kvalitet. De vackra kulörerna på luckorna som går i grön ton möter noggrant utvalda material som skapar en harmonisk och enhetlig känsla. Här finns bänkskiva i Bohusgranit. I det här köket kan ni laga middagar tillsammans och det finns god förvaring för porslin, glas och husgeråd i väggskåp och bänkskåp. Maskinellt utrustat med vitvaror från Siemens med induktionshäll, spisfläkt, hel kyl och frys, samt integrerad diskmaskin. 
MATPLATS:
En öppen matplats är placerad mellan kök och vardagsrum för att skapa ett socialt utrymme som inbjuder till en sen helgfrukost med familjen, såväl som långa middagar med vänner. Här finns utgång till altan på gaveln av huset. 
VARDAGSRUM:
I en öppen planlösning mot matplats och kök finns vardagsrummet. Här finns en fin kamin med utvändig skorsten och ett platsbyggt skrivbord för läxläsning eller hemmakontor. Från vardagsrummet finns utgång med dubbeldörrar mot baksidan till den fantastiska utemiljön med stort trädäck och tomt i direkt anslutning till naturen. 
FÖRRÅD:
Under trappen finns ett praktiskt förråd som rymmer både dina städredskap som familjens alla ytterkläder och skor. 
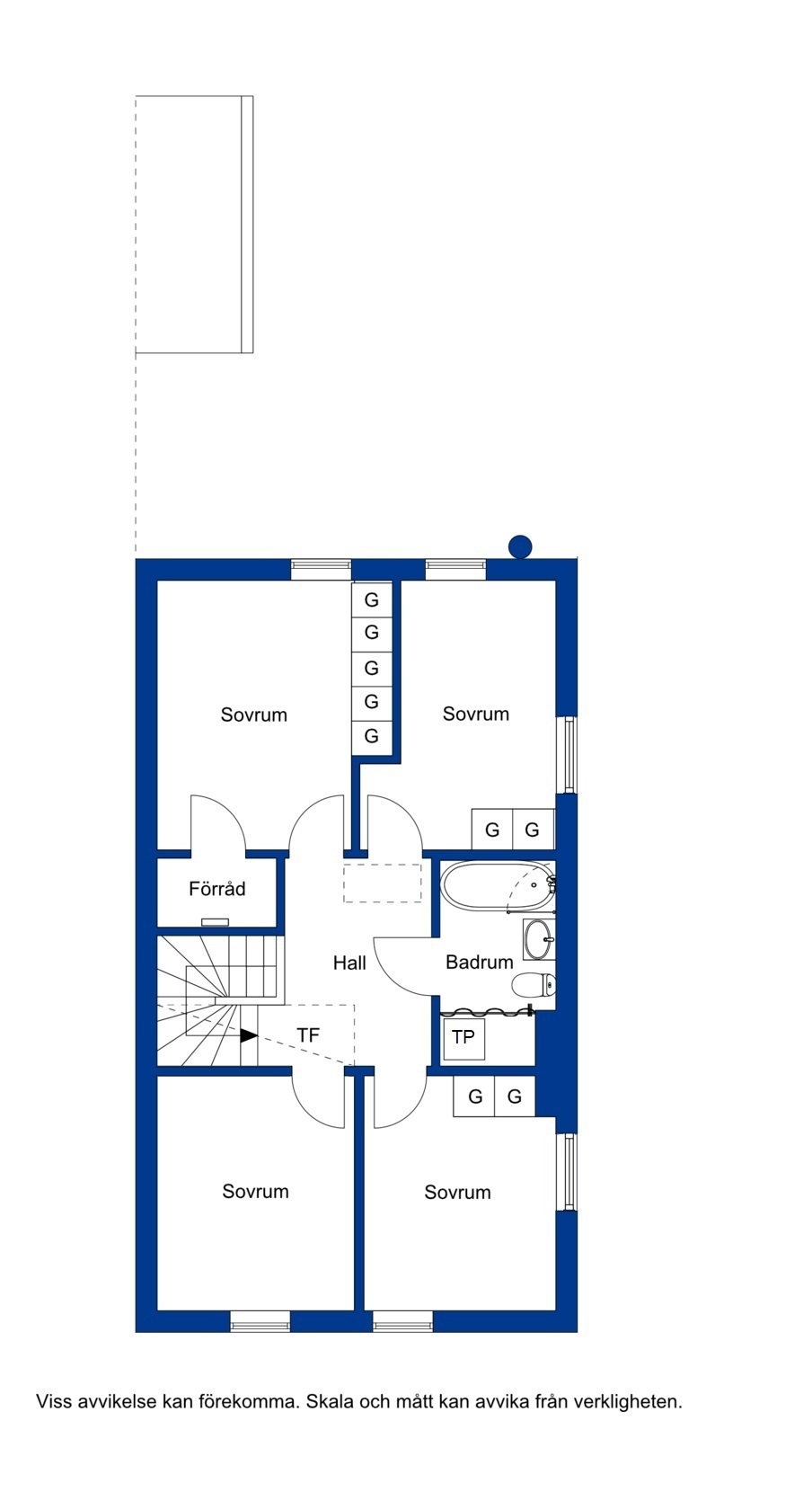
ÖVERVÅNING: ALLRUM:
En vacker trappa i mörkt grön nyans leder upp till övervåningen och övre hall som binder samman de fyra sovrummen på ett fint sätt. I taket ovan trappen finns ett trevligt fönster som sprider fint ljus.  Önskas istället ett allrum tillsammans med hallen går det med fördel att ta ner väggen till det fjärde sovrummet. 
SOVRUM 1:
Rymligt föräldrasovrum beläget mot baksidan av huset med den härliga utsikten över äng och natur. Fem inbyggda garderober samt ingång till klädkammare. 
SOVRUM 2 & 3:
Fina sovrum till barnen, ett beläget mot Vitmossvägen och det andra beläget mot baksidan. Rummen har två fasta garderober. 
SOVRUM 4:
Ett rum som är ett valbart alternativ i denna planlösning och här har säljarna valt att sätta upp en vägg för att få ett fjärde sovrum. Detta kan återställas om man istället önskar ett allrum i öppen planlösningen med den övre hallen. 
BADRUM:
Här möts du av en skön spakänsla med kakel och klinker i samma nyanser som på entréplanet. Här finns badkar, tvättställ med kommod, spegel med pendelbelysning och toalett. Praktiska tvättmöjligheter med tvättmaskin och torktumlare samt bänkskiva intill. Spotlights i taket. 
YTSKIKT:
Huset har genomgående målade väggar och parkettgolv i vitlaserad ask. 
Föreningens bästa gavelläge som ger en stor tomt angränsande naturen på baksidan och allmänning på sidan. Härlig, stor altan som löper runt huset och ger sol från förmiddag till kväll - en plats för hela familjen att njuta av sommaren!
Plats för två bilar finns på husets framsida.
2 plan, 124 kvm , 5 rum och kök, varav 4 sovrum . Areauppgifter enligt mäklarbild . Byggnadsår: 2020/2021
Ventilation: Mekanisk frånluft.
Internetanslutning: Anslutet till Telia Öppen Fiber för både bredband och TV. Innehavaren kan välja valfri leverantör bland Telia Öppen fibers samarbetsparter.
24
															Månadsavgift: 6 309 kr.
																I månadsavgiften ingår kallvatten, sophämtning och bostadsrättstillägg. Kostnad för uppvärmning, varmvatten och hushållsel tillkommer. . 
																Andel i föreningen är 4,72201%.
														
Energiklass: B.
Föreningen äger och förvaltar fastigheterna Vaksala-Lunda 40:1 och Vaksala-Lunda 48:1. Föreningen har 24 bostadsrätter om totalt 2 626 kvm.
Radhusen tillverkade av Blooc AB och erbjuds i två storlekar – 99 kvm (14 st) och 124 kvm (10 st). Husen erbjuder generösa planlösningar med rumsligheter som går att nyttja på det sätt du behöver det bäst. Bostäder med tyngdpunkt på det sociala livet och bostäder det går att växa i. En färgskala i samtida, dova och jordnära kulörer i kombination med gedigna och tidlösa material skapar en lugn och harmonisk helhet.
Föreningens ekonomi sköts av Simpleko. Under året har styrelsen beslutat att höja årsavgiften med 20% från 1 januari 2024. Ytterligare en höjning har gjorts till Q2 2024. Inga fler planerade eller beslutade avgiftsförändringar i dagsläget. Kontrollerat: 2025-01-14
Nyproduktion
1470 kr
588 kr
Det finns för tillfället inga planerade visningar för allmänheten. Vänligen kontakta mäklare för att boka en visning.